Кафе на Стрелке
Общественно-деловой комплекс с инженерным обеспечением
1 ноября 2017 года

Введение

Поиск формы
I.
Вариант эксплуатирует простую тему
II. Мергель
Город Красноярск обязан своим именем красному цвету мергеля, составляющего толщу левого высокого берега реки Кача, ниже Красноярска, напротив острова Татышева. Для осадной горы характерны активная текстура и
III. Метеорит
В
IV. Деревянная пещера
Приходя в
V.
Особенностью данного варианта является линейная организация внутренних процессов и

Генплан
Объект расположен в западной части участка, где к нему организован подъезд и возможность загрузки. Обеденный зал ориентирован на юг и восток. Из интерьера зала открывается вид на остров Татышев и Виноградовский мост. Территория имеет игровую зону на севере и площадь для культурных событий в центре. Функционально свободные участки должны быть дополнительно озеленены.

Технико-экономические показатели
8443
Площадь участка, кв. м
1099,7
Площадь застройки, кв. м
2890,4
Площадь озеленения, кв. м
771,6
Общая площадь, кв. м
293
Площадь террас, кв. м
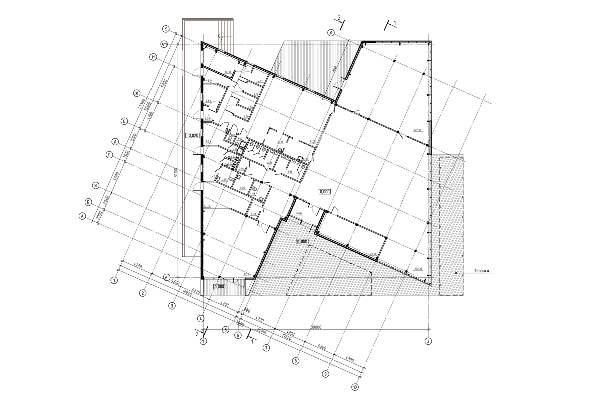
Планировочное решение
Композиционное решение объекта основано на сочетании двух простых объемов с различным функциональным назначением. В отделке используются натуральные материалы, подчеркивающие разницу между объемами — деревянная рейка и металлические листы с фальцем.
Помимо функционала ресторана с кухней и небольшим универсальным залом, объект содержит общественные туалеты круглосуточного доступа с отдельным входом с западной стороны.
Изображения
Заказчик
ООО «Автодом-Инвест»
Команда
Антон Шаталов
Алексей Шишкин
Евгений Спиридонов