Кызыл – это столица Тывы и новый развивающийся центр. В городе появляются знаковые места, новая инфраструктура и благоустроенные общественные пространства.
Мөңгүн
Мастер-план жилого комплекса Мөңгүн в г. Кызыле
1 декабря 2021 года

История
Город был основан в 1914 году. Он начал активно и планомерно развиваться лишь после вхождения Тывы в состав Советского союза в 1944 году и уже тогда стал приобретать индустриальный облик. При этом город сохранял комфортную среду с преимущественно малоэтажной застройкой и развитым озеленением.
В настоящее время организационно-планировочная структура, архитектурный облик и благоустройство современного Кызыла во многом опираются на советские практики.

Контекст
«Мөңгүн-Тайга» переводится как «Серебряная гора» в значении «седая, умудренная опытом, уважаемая». Это не просто самая высокая точка Восточной Сибири (3976 м.), но и важный элемент местного эпоса. Жившие здесь монголы считали гору небесной обителью бога-медведя Хайыракана. И если до величественной Монгун-Тайги жителю Кызыла ехать 350 километров, то в Мөңгүн можно почувствовать ее силу и энергию не покидая города.

Идея проекта

Адаптация архитектурных решений к современным реалиям и новым потребностям горожан. Проект формирует новые принципы строительства, при этом не утрачивая тесной связи с местной природой и фауной. Пастельная природная палитра фасадов и характерные «рожки» на зданиях отсылают к образам животного мира Тывы, подчеркивая региональную идентичность и уважение к природному контексту.

Мастер-план
Район основан на ключевых принципах современной градостроительной практики: квартальной застройке, человекоориентированной этажности и развитой социальной инфраструктуре.
Квартальная застройка обеспечивает интеграцию района в существующую городскую и природную структуру, сохраняя масштаб и целостность среды. Чёткое разделение общественных и приватных пространств формирует безопасную и понятную структуру территории. Дворы без транзитного транспорта используются как пространства отдыха и локальной активности жителей, поддерживая формирование устойчивого соседского сообщества.
Среднеэтажная застройка (6–9 этажей) обеспечивает баланс между плотностью и комфортным человеческим масштабом. Она формирует выразительный силуэт, улучшает инсоляцию и визуальные связи, а также позволяет размещать жильё, сервисы и общественные функции в шаговой доступности.

Самодостаточность — одна из ключевых идей проекта. Район расположен в месте с уже развитой инфраструктурой, но при этом не ограничивается только тем, что есть вокруг. Внутри комплекса расположены детский сад и школа, обеспечивающие потребность в социальных объектах на район. По внешнему периметру кварталов на первых этажах размещены коммерческие и сервисные помещения — магазины, кафе и бытовые услуги, формирующие активный уличный фронт и обеспечивающие потребности жителей.
Технико-экономические показатели
19
Площадь участка, га
152 383
Площадь жилья, кв.м.
10 076
Площадь коммерции, кв.м.
3 555
Количество квартир, шт
5 861
Количество жителей, чел.
795
Количество парковок, м/м

Архитектурные решения
Жилая застройка выполнена в пастельных тонах с белой выступающей сеткой, придающей фасадам объём и выразительность. Первые этажи зданий проработаны, выполнены из тактильного материала. В зависимости от этажности меняется и облик крыш: у малоэтажных домов они выполнены в форме восточной пагоды, что формирует разнообразный и запоминающийся архитектурный образ района.
Создание террас на первых этажах добавляет архитектурную выразительность фасадам, делает застройку более современной и человеческой по масштабу. Террасы создают мягкий переход между квартирой и двором, усиливая контакт с природой и делая проживание более "домашним" и уютным.
Акцентом района является яркая школа.

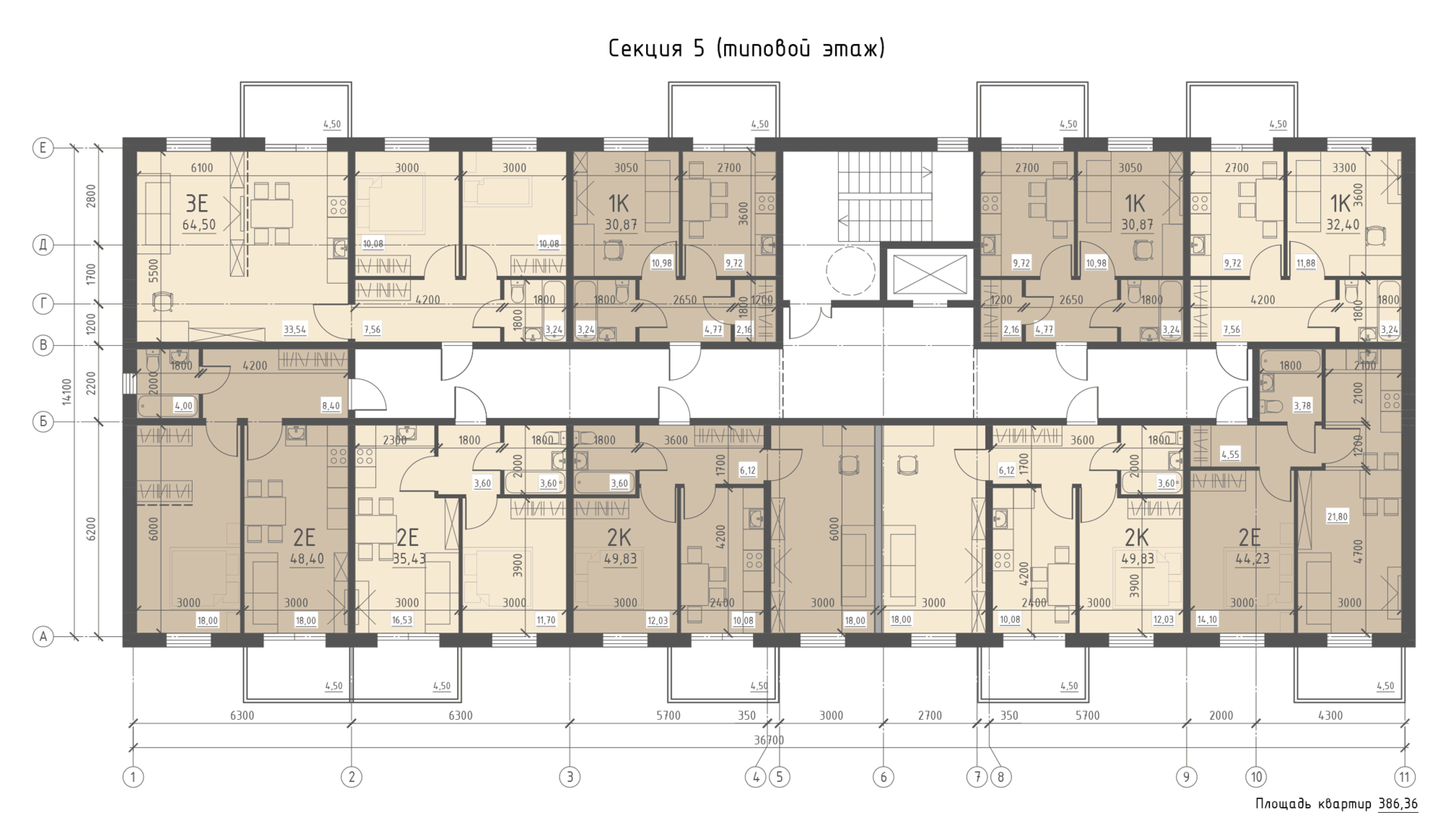
Площадь квартир — от 30 до 90 м². Предусмотрен широкий набор планировок с функциональной организацией пространства: минимизированы проходные и неэффективные зоны, каждый квадратный метр используется рационально.
Школа на 825 мест, расположенная в центре района, является акцентом на фоне окружающей пастельной застройки
Принципы благоустройства
Квартальная структура формирует безопасную и социально ориентированную среду. Внутренние дворы используются как пространства для детских игр, спорта и отдыха жителей. Главная улица формирует коммерческий фронт с четким зонированием на транзитные и буферные зоны. В межквартальных проездах располагаются парковки для жителей микрорайона, оснащенные озеленением.
Интерьер
Проектом предлагается индивидуальный дизайн интерьеров всех общественных зон, создавая уют не только во дворах и переулках района, но и привнося его за входные двери парадных.
Реализация
Заказчик
ООО Строительная компания «Трансстрой»
Команда
Ирина Евдокимова
Наталья Колесова
Данила Юсьма